
こんにちは、バリカンの中川です。長かった梅雨もようやくあけ、いきなり夏が本気出してきてます。
そういえば、B’zの「太陽のkomachi Angel」って何のことですか。#ごぞんじの方教えて下さい。
PROTO武蔵小山Ⅱ・Ⅲも3月から着工して順調に3階壁まであがってきました。
2棟現場で、工程を少しずつずらしながらの検査となります(ので、検査回数も多い)。
1棟目で型枠を建て終ったら、鉄筋屋さんが鉄筋組む。鉄筋組んでる間に型枠屋さんは2棟目で型枠を建て込む。
少ない人数で現場を回していけるので効率がいいのです。鉄筋屋さんが組んでる間、型枠屋さんが待つ必要がありません。
そんな合間合間をぬって今日も配筋検査。前回は、現場監理そのものの意義について書きましたが、今日は具体的に配筋検査って何しに行ってるの?何が大事なの?をお話したいと思います。

「配筋検査」というのは、配筋が構造図通り正しく施工できているかを設計者が現場監理者としてチェックしにいくことを言います。
ひところ前は「手抜きを見逃さないため」という意味合いもあったようですが、さいわいそんな施工会社にはあたったことはありません。
今どきそんな手抜きをしていたらとてもじゃないけど、あっという間に信用を失って仕事が来なくなっちゃいますよね。
「仕事をするのは報酬を頂くため(だけ)ではなく、次の仕事を頂くため」とはよく言ったものです。
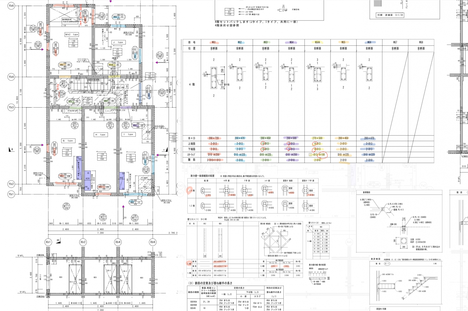
配筋検査に必要な書類は、構造図です。構造図に全ての情報が記載されてます。
何ミリの太さの鉄筋を何ピッチで入れてといった情報です。それを元に構造計算して安全を確保してるのでとても大事。
構造図って伏図、軸組図、梁リスト、壁リストと別々のページにまたがっています。
それを現場であっち見たりこっち見たりするのは非効率。ということで、バリカンではそれらを躯体施工図にプロットしたものを1枚にして作成。
現場ではiPadでチェックしています。

さらに梁記号と伏図の梁を色分けするなどして、視覚的に把握しやすく。
この作業をすることで、図面の再確認や把握につながる上に、現場での確認時間を短縮できるので、とてもおすすめです。
ここからが本題ですが、ほんとのほんとに配筋検査で重要なこと、確認すべきことは本数や径、ピッチではないのです。
それらは鉄筋屋さんが施工図をもとに数量拾いをして、現場に納品し職人さんが組み立てる。
それらはすでに適材適所用に加工されてるので余ったりすると気づく。
さらに現場監督が施工写真として梁記号をホワイトボードなどに掲載させたものと照らし合わせながら撮影する。
なので、手抜きしようがないし、もし間違っていたとしても誰かが気づいている。
では、何を見に行くか?それは、「カブり」「定着」「継ぎ手」です。
どれだけ正しい寸法の鉄筋が組まれていたとしても、この3つがおそろかになっていると組んでいる意味がなくなってしまうのです。
適切な強度がでないのです。
「カブり」とは「かぶり厚さ」のことで、鉄筋表面からコンクリート表面までの最短距離を指します。
部位ごとに最低厚さが定められています。それを下回ると鉄筋が錆びやすくなってしまう。錆によってコンクリートが割れてさらに鉄筋が錆びてボロボロになる。躯体としての強度がなくなる。悲しいですね。
「定着」とは、壁の鉄筋がどれだけの長さ床の鉄筋に絡んでなければならないか?などの定着長さを指します。
「継ぎ手」とは鉄筋同士の重なり幅のことです。鉄筋を端から端まで1本で施工することはできないので、継ぎながら施工していきます。この現場では「重ね継手」です。※溶接で継ぐこともある

その重ねる長さや定着長さが決められています。
例えば一般部では「L2(エルツー)」と言って、「35d定着しなさい」と決められています。
35dは「35x鉄筋径」。D13(13ミリ径)の鉄筋の場合、35x13=455ミリになります。
それらの重なり幅がないと、定着していることにならない。強い引っ張りがかかった時などに拘束力がなくてすっぽ抜けちゃう。
躯体としての強度がなくなる。悲しいですね。
なので、どれだけ図面通りの径、ピッチ、本数で施工できていても、この3つがおろそかになっていては意味が無いのです。
そしてこの3つは悪気がなくても、勘違いや見落とし、加工・施工誤差でどうしても発生してしまうのです。だって人間だもの。#みつお
それを防ぐために、お互い将来悲しい思いをしないよう、配筋検査をおこなうんです。
僕はこのセンサーが異様に発達していて、現場をスキャンするように眺めているだけで不具合箇所が「ここだよ」と声をかけてくれるようになります。うらやましいでしょ。
ちなみに、上の写真では重ね継手長さはOKですが、床配筋の下筋のカブりが不足していた(右から3列目あたりがわかりやすい。型枠についちゃいそう)のでスペーサーを追加してカブり寸法を確保してもらうよう指示しています。
それ以外にも重要項目としてスリーブ検査、電気ボックス検査などありますが、長くなったのでまた次回。

そうして丁寧に施工してもらい、キレイに打設されたコンクリートの肌を見ると、嬉しくなりペチペチとたたいちゃいますね。ペチペチ。
