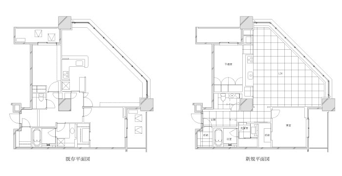
タワー型マンションの一室。開口部からの眺望だけで十分インテリアとしては魅力のある状態でした。その眺望を最大限楽しめるよう、キッチン廻りの配置を調整しました。内装は眺望と入居後に入ってくる家具が引き立つような材料を選択。真っ白な空間の中に家具と眺望が広がるリノベーションとなりました。
解体前
解体中
内装中
all photos (c) jun-ichi nakagawa

設計 : Nissyo Design Dept. (中川純一+羽生和正)
場所 : 東京都港区
延床面積 : 91.32 sqm
設計期間 : 2009.04-2009.05
施工期間 : 2009.05-2009.06


















