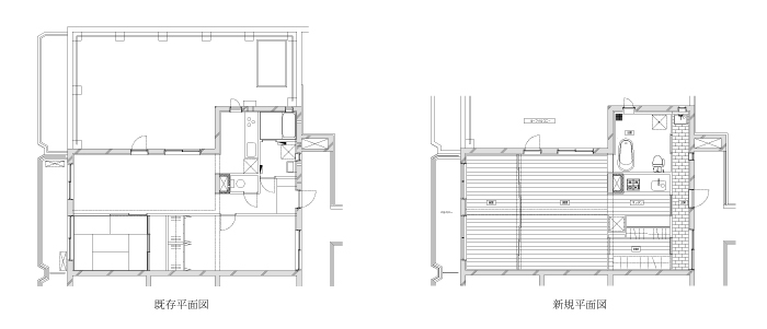
広いテラスを持つ集合住宅の一室。広いテラスのような内部で、家族が点々と思い思いの場所で過ごせるような改装となりました。
どこにいても、向こう側の光を感じることができるように、廊下、水回り、リビング、個室をストライプ状に配置し、各場所が光でサンドされるようにしました。
また、コストをかけずに塗装仕上げとするため、既存クロスの上に薄ベニアを打ち付け。ボードの解体やクロス撤去、下地処理、窓廻りの処理などが不要となるなどのメリットに加え、ベニアの柔らかい木目がうっすらと浮かび上がる内装となっています。
解体前
解体中
内装開始





















all photos(c) jun-ichi nakagawa

設計 : Nissyo Design Dept. ( 中川純一 + 羽生和正 )
場所 : 東京都大田区
設計期間 : 2009.05-2009.06
施工期間 : 2009.07-2009.08



