
「室外機置き場を建物の特徴へ変換。小枝という名の集合住宅」
竣工:2013年7月|用途:集合住宅(11戸)|計画地 : 東京都中野区|敷地面積 : 63.14m2(19.1坪)|建築面積 : 46.21m2(14.0坪)|建ぺい率:73.19%(許容:90%)|延床面積 : 181.25m2(54.8坪)|容積率:232.47%(許容:240%)|構造 : RC造| 規模 : 地上4F建て | 設計 : 2012年7月-12月 | 施工 : 2013年1月-7月 |
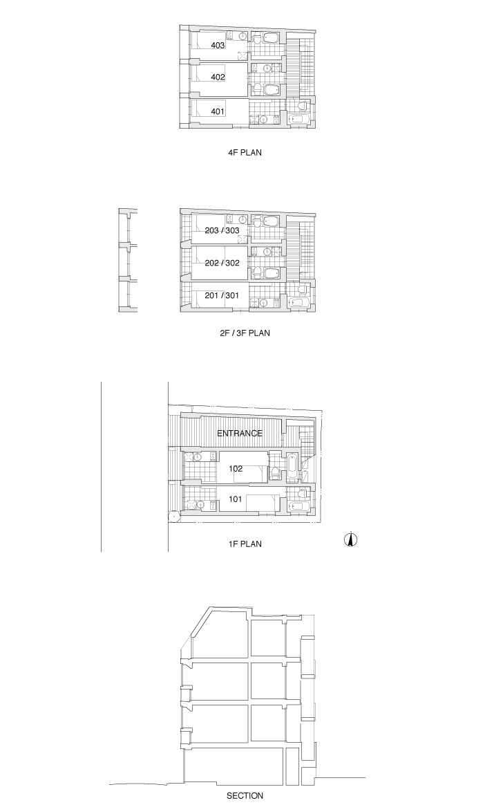
わずか19坪の敷地に、一部屋当たり12平米前後の小さな部屋が11戸からなる4階建て賃貸マンションです。
これだけ小さな部屋ですとシャワールームのみといったプランになりがちですが、玄関と水回りを共有させることで、全室バスタブ設置を可能としました。
玄関と水回りが一緒?となかなかイメージしづらいですが、5年前、三軒茶屋の集合住宅(https://www.bariquant.jp/house-in-sangencyaya.html)にて取り組んでみたところ、好評であったことからさらにバージョンアップさせました。
今回の物件で大きな特徴となっているのが、窓台と室外機置き場が互い違いに組み合わさってできるファサードと内部空間です。
施工費や空調効率を考えると居室すぐそばのバルコニーに設置するのが一番ですが、スペースが限られているため、バルコニー面積を確保するのがもったいない。
そこで、バルコニーを上下2つに分けて、下を室外機置き場、上を室内の窓台としました。背の低いバルコニーを2層持ってる部屋です。
室外機置き場には目隠しルーバーが設置され、空調効率が落ちないよう十分な間隔でランダムに並べられています。建物を見る角度や歩くスピードで刻々と表情を変え、街並みに動きを作り出します。
また、室内から容易に室外機をメンテナンスできるよう、室外機置き場には引き違いサッシが付けられています。
上部はタイル張りの窓台となっていて、室内に明るいボリュームを作り出すと共に、街路と程よい距離感のある関係性を持たせています。
小ささからゆえの不利な条件を街並みや室内空間に落とし込んだ賃貸マンション「BRINDILLE中野坂上( ブランディーユ=小枝の意)」です。

事業主:株式会社リアルグラッド 担当:永末明紀
意匠設計:設計事務所バリカン 担当:尾形模空
施工:株式会社リンクパワー 担当:今野幸弘
メディア等
・Casa BRUTUS
・「驚きの新発想!玄関にバスタブがある集合住宅「BRINDILLE(ブランディーユ)中野坂上」内覧会に潜入」(HEYAZINE)
・コンセプトは”持たない生活”中野坂上「ブランディーユ」内覧会レポート(賃貸360°)

各住戸とルーバーがストライプ状に並ぶファサード。ルーバーの後ろにはエアコン室外機が設置されている。

シマトネリコの木とルーバー。

ルーバーが小枝のようであり、マンション名は「BRINDILLE(ブランディーユ)」=小枝となりました。

エントランス。床はルーバーと同じ樹脂デッキを使用。ホントは木材を使いたいけど、不特定多数が使用するためメンテナンス性重視で樹脂を採用。

共用廊下の床も同様。デッキの下が給水、ガス配管スペースとなっていて将来のメンテナンスに備えている。

101号室エントランス。タイルで仕上げた土間空間となっていて自転車を置けるようになっている。

同浴室。1階ながら2つの採光面と白いタイルによって明るい室となっている。

同エントランスから道路を見る。可動棚が設置されている。

102号室エントランス。

101号室同様、エントランスには自転車設置可。

201/301/401号室エントランス。入ってすぐ浴室になっていて居室面積を最大限確保している。

401号室。最上階は道路斜線により斜め壁となっている。その分天井高を他の階より高く(2750mm)して圧迫感をなくしている。
同キッチン。奥に見えるのがエントランス(浴室)。

棚は全て可動。水回り以外の界壁は乾式とし、将来的にワンフロア3室を1室に拡張できるよう備えている。
201/301号室 居室から道路側を見る。

窓台はタイル張り。下がり壁はエアコン配管スペースのため斜めに。

202/302/402号室 エントランス。水回りが1室にまとめられている。

同 居室。

同 道路側を見る。

203/303/403 エントランス。




