
|専用住宅 | 計画地 : 東京都渋谷区 | 敷地面積 : 42.54m2(12.8坪) | 建築面積 : 25.48m2(7.7坪)|建ぺい率:59.91%(許容:60%)| 延床面積 : 76.44m2(23.1坪)|容積率:187.63%(許容:240%)|構造 : 木造 | 規模 : 地上3F建て | 設計 : 2015年1月-11月 | 施工 : 2015年12月-2016年4月 |
住宅密集地かつ細い路地のような道路に面した敷地に建つ木造3階建住宅。
「明るい家にして欲しい」シンプルな要望の建て替え依頼です。
工事車両が入れない道路幅員であることから、手運び可能な木造として計画された。
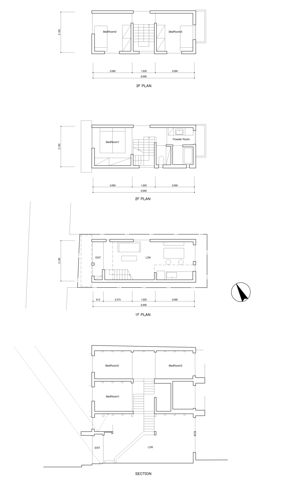
1階に可能な限り多くの光を届けられるよう、木造のいわばリミットである軒高9mから3階、2階に
必要な階高を確保し、残った高さ4.0mを1階の階高とした。
開口部を設けた階段室を中央に配置することで3層分の光を取り入れる大きなホールのような場所とした。
光を確保できてもそのままでは住宅として身体になじまない。
そこで3つの軒下空間を挿入し、家のスケールに寄せることによって多様な居場所をつくった。
外部の軒下空間は1階を街へと拡張させ、上面はレフ板の役割を果たしホール上部へ光を届ける。
室内の軒下空間は外部から連続する玄関に位置し、下部は人の出入りを、上部は光と風の出入りを分担する。
ホール奥の軒下空間はキッチンとなり、上部は階段踊り場から延長することで寄り道するような居場所を作り出している。
設計 : 村井美菜子 / Bariquant.
構造 : 植村将志、阿部智己 / NDN
施工 : 雨宮修、池田伸 / 伊藤工務店
phots(C) Kenta Hasegawa / Bariquant.(一部)





























