
「単管パイプ+養生シートで100%再利用可能な仮設空間を作る」
|用途:飲食スペース(仮設) | 計画地 : 東京ビックサイト | 敷地面積 : -m2 | 建築面積 : 168.30m2(50.9坪) | 延床面積 : 168.30m2(50.9坪)|構造 : 単管パイプ組み | 規模 : 地上1F建て|
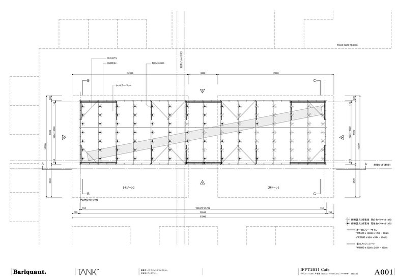
国際見本市内に設けられた大きなワンルームのカフェスペース(6.6m x 25.5m)。
3日間で壊さなければならないため、100%リサイクルできる方法を目指した。
武骨かつエレガントなカフェは工事現場で使用する単管パイプと黒いメッシュシートが使われている。
他の展示空間とカフェとは黒いシートで分けられ、ゆらめく生地越しにお互いの姿を確認することができる。
床は提供された各社の家具が並び、天井は二色のLED電球で満たされている。
二色のLED電球は高さを変えて、昼の場所と夜の場所を作り出している。
設計:Bariquant. + TANK
会期:2011.11.2-11.4
面積:168.3m2
場所:東京ビックサイト IFFT interiorlifestyle living 2011
all photos(C) Bariquant.




























