
「1日を通して光の動きが感じられるくの字の家」
竣工:2012年11月|用途:専用住宅 | 計画地 : 東京都葛飾区|敷地面積 : 153.47m2(46.4坪)|建築面積 : 60.22m2(18.2坪)|建ぺい率:39.24%(許容:60%)| 延床面積 : 82.44m2(24.9坪)|容積率:53.72%(許容:200%)|構造 : 木造 | 規模 : 地上2F建て | 設計 : 2011年6月-2012年5月| 施工 : 2012年6月-11月|
町工場を併設する家が密集する住宅地に建つ、写真家と作家と猫のための家。
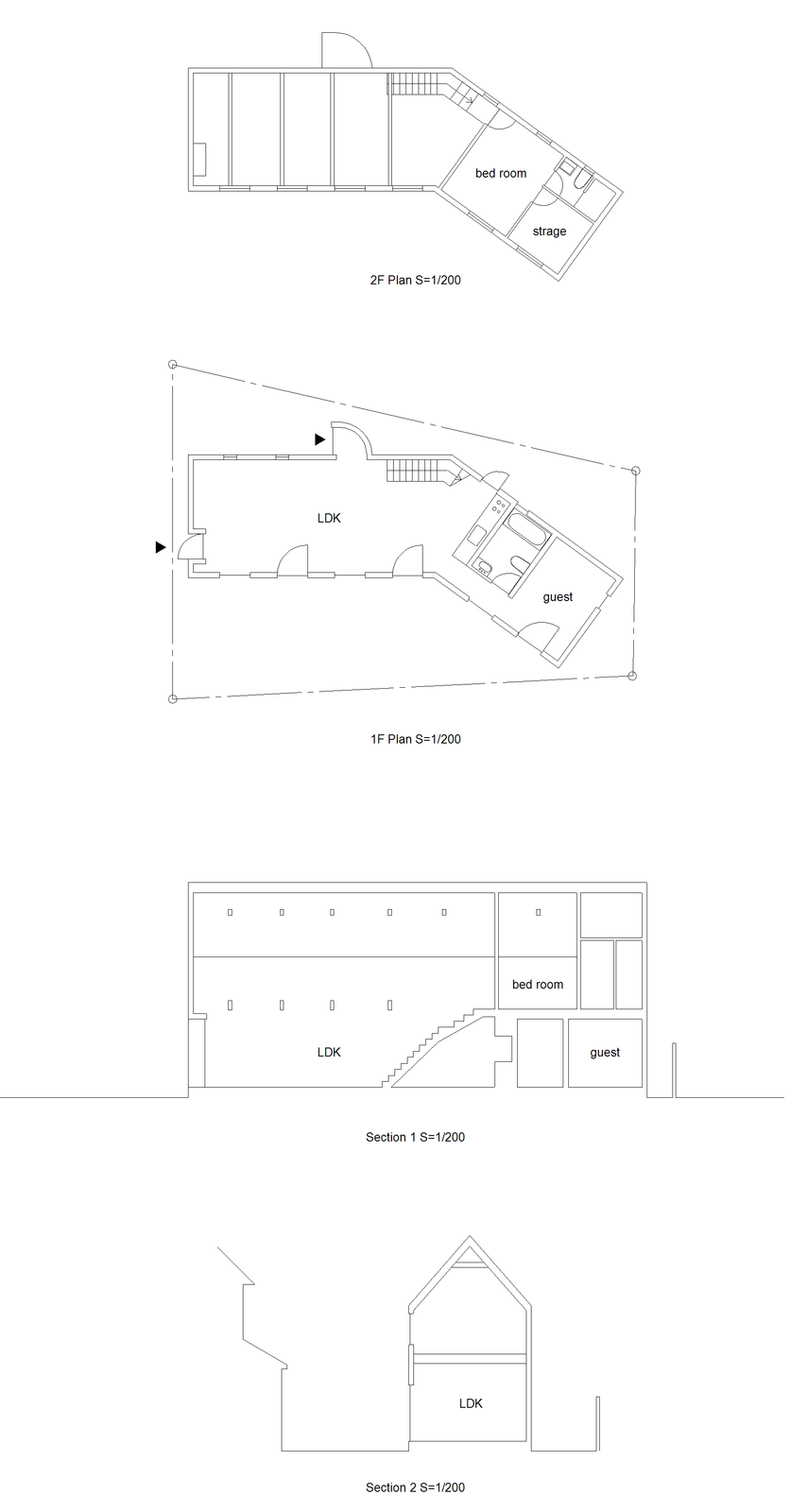
二人で住むには大きすぎる敷地に対し”くの字”に身をくねらせて建物が配置されています。この家には大きな玄関のような空間があります。
写真スタジオとリビング、予備室として検討されたスペースでしたが打合せを重ねていくうちに床がなくなり壁がなくなり梁と大きな空間のみが残りました。
それは大勢の客を招き入れる空間であり、街と庭の転換空間であり、街路と静かな個室を結ぶ接続部であり、家の中にありながら公共スペースの役割をも担うかのような”大きな玄関”と呼びたくなる場所となりました。
南庭に面したいくつもの掃き出し窓は2層に渡り均等に並べられ一日を通して太陽光や雲が移動していき、廻りの家々や空は見え隠れする景色として取り込まれます。
人も街も気候もおおらかに迎え入れる大きな玄関空間を中心とした生活が日常を彩っていきます。
意匠設計:設計事務所バリカン 担当:尾形模空
構造設計:MI+D建築構造研究所 担当:加藤征寛、牧聖也
施工:大熊工務店
all photos(c) Seiji Okumiya
掲載誌:LiVES 2013年10月号 P36-39

外壁はガルバリウム鋼板

大きく確保された庭と配列された窓

道路からのゲスト用玄関

敷地北側にあるプライベート用玄関

キリンの置物はピノ(猫)の爪とぎ

写真スタジオとして使われるため気積が大きく確保されている

スタジオ、リビング、ダイニングが仕切られること無く大きな空間に点在する

暖炉がおかれたリビング。キッチンの脇を通ってゲスト用バスルーム、ゲストルーム

ゲスト用バスルーム

ゲストルーム

梁によって仕切られた床のない2階

くの字にまがった天井

階段もくの字に寄り添って配置されている。折れ線から突き出した斜めの部材が階段を支える

2階から階段を見下ろす

2階主寝室

寝室の奥にはトイレ、シャワールーム、納戸が用意されている

窓がある場所にはセントラルヒーティングが取り付く

トイレ、シャワールーム
納戸。夏場吹き抜けに溜まった熱気を主寝室を介して納戸から外部に抜けるよう三角壁の頂点は開くようになっている






