
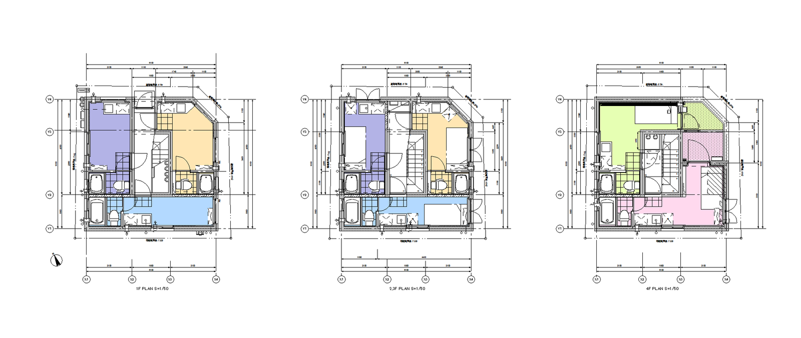
「15坪の土地に11戸。天空率でランダムに削られた4階と着色された開口廻り」
竣工:2013年10月|用途:集合住宅(8戸)+事務所(3戸) |計画地 : 東京都新宿区|敷地面積 : 50.58m2(15.3坪 |建築面積 : 36.60m2(11.1坪)| 建ぺい率:72.36%(許容:80%)|延床面積 : 146.40m2(44.3坪)|容積率:229.81%(許容:240%)|構造 : RC造|規模 : 地上4F建て | 設計 : 2012年7月-2013年3月 | 施工 : 2013年3月-10月 |
すっかりお馴染みとなったコンパクトマンションシリーズ。
今回も居室の広さは9~12平米と最小限に抑えられている。
角地の利を活かし各住戸角部屋となるよう、階段室を中心にドーナツ状に部屋を配置した。
将来的に1フロア1室に改修しやすいよう、階段室廻り以外は非構造壁としている。
狭さを解消するため窓は極力大きく、おおらかにしている。
道路に面した窓は両開き窓となっており、小さな部屋の壁の一部がすっぽりと切り取られたような開放感がもたらされている。
小さいが故に、毎回おのずとできることは限られてしまう。
そこで、建物の特色・キャラクターを作り出す工夫として、窓まわりにアイシャドウのようなメイクを施した。
色は周囲にある建物やレンガの花壇を参照した。
アイシャドウは「目の周辺に陰影をつけることで、顔を立体的に見せる効果がある」のだという。
とある化粧品のコピーは「ひとぬりで、明るく大きな目元をつくるアイシャドウ。自然な立体感ある目もとへ!」である。
わずか10センチ幅側面を着色しただけだが、アイシャドウと同じようなお目目パッチリ効果が獲得できていると思う。恐るべしアイシャドウ。
事業主:株式会社アールエイジ 担当:中西武士
意匠設計:設計事務所バリカン 担当:村井美菜子
構造設計:間藤構造設計事務所 担当:間藤早太

外壁は普通型枠を150に割いたコンクリート打放し。土木構築物のような力強さを目指した。
開口部側面のみに着色。近隣にある色から選択することで仲間入りさせている。
外回り。
エントランス。「SS114」は建物名。
階段室。
101号室。少し掘り下げられていることで道路レベルと隣接している。
102号室。
2階階段室。
整然と並べられたメーターボックス。
301号室。玄関から。全住戸ビルトイン洗濯乾燥機が設置されている。
同室 浴室入り口。
同室 階段室に面した躯体は外壁と同じよう150ピッチでラインが入れられている。
室内はパネコートにライン。
302号室 道路側開口。道路側の開口部は避難のため両開き窓。ダイレクトに外部とつながる。左の壁はコンクリートブロックの住戸間仕切り。将来の拡張に備えている。
同室 サッシ周り手摺、窓まわり塗装。
同室 居室 収納の代わりにステンレスパイプが設けられている。
303号室 キッチン。
401号室 キッチン、右手にバルコニー。
同室 居室
同室 天空率で削られた天井
同室 バルコニーを見る
同室 バルコニー
同室 キッチン
同室 浴室側
同室 浴室
402号室 低い壁面には収納棚が設けられている





























